Solus
By oneself; alone. Used as a stage direction.
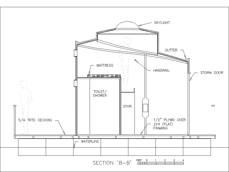
How big is big enough? Surely big enough to stand and stretch, big enough
to have a separate toilet and shower. Big enough to have room to sit and
talk or play cards with a friend or two. Probably big enough to have a
dedicated place to sleep, not necessarily a separate room, this is after
all, a home for a single guy. Finally, big enough to prepare a meal or cup
of coffee without moving stuff around. Big enough implies a place a little
bigger than Atkins elegant little ‘Retreat’, but not much.
‘Solus’ is my take on a space that’s just big enough. The basic spiral
shape and general construction concept are from a little studio design I
worked up for myself a few years ago to get in under a flood plain rule
change at the house. It didn’t get built, my wife didn’t think it was that
good an idea and actually neither did I.
The basic concept is for a simple raft style platform, barrel supported
(polyethylene please) framed and decked with treated lumber supporting a
spiral enclosed space built in a simplified stitch and glue format covered
with an ‘exterior insulating finish system’ (EIFS). A layer of foam
insulation covered with a fiberglass (very open mesh) reinforced synthetic
stucco.
The basic ‘shell’ of the house is fabricated from 16” wide panels of
oriented strand board (OSB) or plywood if preferred, though I think that
the screened side of the OSB varnished would give the interior a very warm
appearance at little cost. For stitching, I’d recommend copper wire
inserted from the inside and left in place. For glue, use a standard
construction grade applied from outside. Start by erecting interior walls
and sleeping platform. Start erecting wall panels at the high side and
work around, the top of each panel tapers 2” so prefab cutting, drilling
can be done for those so inclined. The central circular skylight section
is prefabricated and installed with temporary braces until roof panels are
installed. Add stiffeners to top of panels and 1x2 roof web pieces. Roof
panels are screwed and glued in to place and everything should stiffen up
admirably, it is after all a shell structure.
Ventilation is handled by the two doors (standard storm doors with
screened, sliding glass panels) and by vents at the skylight. The skylight
itself can be a simple blow molded piece of plastic, an elaborate faceted
wood and lexan piece or a piece of plywood screwed in place. Additional
light and vision would be provided by square portlights made from 8”x 8” x
3” clear acrylic glass blocks in simple treated 1x4 frames. Location and
number to be determined by sitting around inside and cutting square holes
until satisfied.
Once portlights are installed, begin exterior finish. Apply a layer of 15#
roofing felt with roof mastic followed by 1” to 2” of foam (depending on
latitude). A few mechanical fasteners should be used at the top of the
panels and at the end of walls. Be sure to incorporate the valley edge at
the top of panels for a built in gutter. Fair the foam, if desired, and
then apply the adhesive coated fiberglass reinforcing mesh over foam.
Trowel on a base coat of acrylic stucco and stand back. Embellish to suit,
nothing, eyebrows over portlights, ribs, scallops, castellated
battlements, regular architectural profile shapes (wildly out of scale on
a 130 s.f. structure) are all possible. Make sure it all drains and
remember an EIFS system is not terribly impact resistant.
The choice of systems will vary depending on individual preferences,
finances and circumstances. I would certainly recommend propane for
cooking and probably refrigeration. Electrical systems would start out
with shore power with a minimal 12v system for lights fans and
communication stuff. Add battery capacity and generating capacity when you
cut the cord, so to speak. Heating and possibly cooling will depend on
location, There’s good ventilation and canopies (large umbrella?) would be
standard issue. A mini charcoal briquette fireplace fabricated from an old
stainless steel glass pack muffler and tailpipe would be a nice masculine
touch. Water collection off the roof would be easy with everything coming
off the small roof at one spot. May be a little weighted diverter would
allow a little water to run off roof before starting to fill tank. The
toilet could use one of the 55 gal barrels as a holding tank.
The whole assembly could be considered a trimaran with a surprisingly good
volume to wetted surface coefficient. Once the miniscule power required
for the weight and wetted surface was calculated, sanity would return and
we would recognize that any good breeze would overpower a vessel that is
biased toward the house side of houseboat. That being said, a 5 to 10 HP
outboard would be able to easily change our address any reasonably calm
day.
Costwise, I took the phrase “a few thousand” to mean “about three”.
Anything less would be really tight, anything more could be rolled into
better fixtures/equipment or put to other uses. Unspoken, but assumed is
that since it was boat building that helped get our hypothetical
unfortunate in this mess, he will provide the labor to build his new home.
Virtually all the materials for Solus come from the local building supply
emporium. New 55 gallon polyethylene barrels are about $20.00 each
locally. Some of the internal furnishing and fittings would come from
camping or camper sources. The only expensive marine hardware required
would be….nothing.
I’m a little uncomfortable with the idea of doing something to spite
another, but on the other hand, I think that Solus would stand on her own
as a unique, easily built floating home eminently suitable for a guy to
live for as long as necessary.
Solus Statistics
| LOA |
|
22’-0” |
| Beam |
|
14’-0” |
| Displacement |
|
3900# freshwater |
| Draft (full load) |
|
11 ½” |
| #/” immersion |
|
500#/” |
| Bridge clearance |
|
14’-0” |
Weights
| Deck and structure |
|
4.0#*275 1100 |
| Walls |
|
2.5#*405s.f. 1013 |
| Roof |
|
2.5#*132s.f. 330 |
| Interior walls/platform |
|
360 |
| Furnishings |
|
320 |
| Subtotal |
|
3123# |
| Remainder for Payload |
|
777# |
Drawings:
(click to enlarge)
Bio:
Cypress, Tx (outside Houston) Current boat the 'Bionic
Log' 16'8" sit-on-top stripper, have about a 18 month habit, 8 boats
in 12 years.
Misc:
orbit3.avi
|