Duckworks
vvvv
The Online Magazine For Amateur Boat Builders

Obsolete Outboards
by Max Wawrzyniak


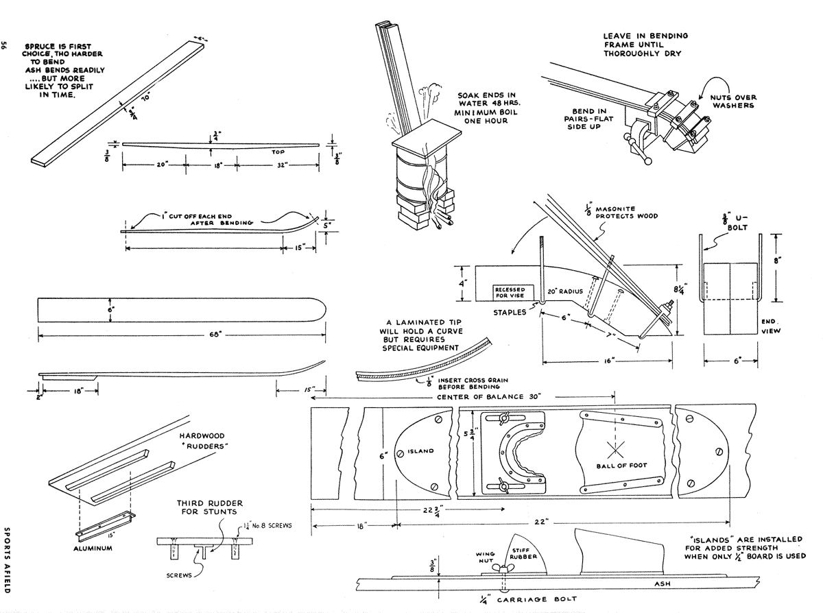
"Water Skis"

I was never much into water sking myself; I did it once when I was a teenager, just to prove I could, and have never felt the urge to try it again.

But I ran across the following info from 1958 and found the data very interesting. The fact that people were able to ski satisfactory behind small boats with low horsepower "flies in the face" of current thought that one needs an expensive V-8 inboard-powered skiboat in order to water ski.

As Duckworks is supposed to be about home-built boats, I am also including some info on home-built waterskis, which might be just the ticket for those readers who find that their younger passengers need some form of entertainment beyond just the thrill of being out on the water in a boat their "old man" built.

Max