|
|
 |
|
| Woobo Model
 |
Received my
order thanks for the prompt service. At 7 below
I didn't even try to warm up my shop but I did
manage to build the model of the WooBo.
At some later date may even add a radio but
it'll need lots of lead.
Steve Fisher |
|
 |
|
Boat Cover
Hi Chuck and Sandra,
What a coincidence that you just printed an article
on sewing just as I was finishing up a cover for the
troutboat!
I used nine yards of dark green Sunbrella
for the fabric, a $66 (on sale) bottom of the line
plastic Brother sewing machine, a denim needle, and
a commercial spool of awning thread that I had set
on the table behind the machine because it would not
fit the thread holder.
Of course the equipment was way below any reasonable
standards. In fact, the only way it would sew was
to line up everthing and gun it - anything less than
full throttle and it would bog down or jam. I think
I tangled stuff up twenty or thirty times. But it
sewed and it sure beat spending hours and hours trying
to push a needle through that Sunbrella stuff by hand!
I did get a estimate to have a pro sew the cover
for me - it was $250 bottom and up if it took longer
than expected. I figured for $250 I could read a sewing
maching manual and figure things out enough to make
a pasing cover - and I guess I did. It is clearly
homemade - but then so is the boat so they match just
fine. I recon the bottom line is - go for it with
what you have.
Larry Pullon |
 |
| Hi Duckworks
My oarlocks arrived today. What fantastic service!
Thanks very much, the Douglas oarlocks look great,
and fit well. Now to reshape the oars so that they
are square under the leathers.

Here is a picture of my Saint Lawrence Skiff. It
is a great rowing boat.
Regards John Hitchcock |
 |
| A Blast from
the Past
Hey,
These pictures were taken by Bob George circa 1978
at the entrance channel to Tarpon Springs, Fl. Katie
and I [on our 26' Cross tri] were getting in from
a 48 hr. offshore passage from Carrabelle, Fl. It
was blowing hard and cold from the S. E. in preparation
for a mean cold front. Our little tri, while severely
overloaded, was sailing along at a good clip. We wound
up spending close to a year aboard and sailing from
Kemah to the Bahamas and back. Bob sent us these pictures
three days ago--28 years later.
Lee Martin |
 |
| The coolest
model I ever saw...
...was made by my
friend Dennis. We met last summer at an informal messabout.
Four of us got together to row on a local lake - I
guess that is a messabout. Anyway, Dennis had just
bought a Slam Dink from Bob Williams - who cant seem
to stop building boats - and he was having a ball
rowing it all around. Later we compared notes and
you could see the wheels in Dennis' head as he realized
that people can actually build boats in their own
garages.
We got together several times over the next few months
and I found that although Dennis had never built any
boats, he was very creative and had built all kinds
of stuff from furniture to movie props to some really
cool kiosks. Then one day he showed up at my house
with this model. I was pretty amazed and could not
wait for him to start building the real thing, hoping
to be able to help a little if he needed it.
Then about a week ago, Dennis' wife, Bobbie came
by the shop and told us that Dennis had died. We were
floored. He was just here. We were just talking about
my current project and his houseboat to be. He was
so excited. Now he is gone.
Chuck Leinweber
|
 |
| Popcorn
I
was wondering how to calculate the volume of a section
of my under-construction Melonseed that I was thinking
about closing off for flotation. I didn't have Ping-Pong
balls or Styrofoam 'peanuts' but then realized I had
popcorn and a hot air popper. I partitioned off the
area in question and used a half gallon container
as a volume measure to fill the section to be studied.
I used the heat from the popper to help warm the workshop
and cleaned up afterward with my shop vac. An internet
site told me that a gallon is equivalent to 0.1337
cubic feet. Voila!
Steve Lansdowne |
 |
| Unusual Grafitti

https://www.thepuzzlefactory.com/2006_chalk.htm
Look at the third picture down(seen
above). Amazing - Aaron Edelman
|
 |
| Tennessee Update
Chuck, Hi. I'm once again diligently
pursuing the goal of a summer launch of my "Tennessee",
tentatively known as "The Big Lebowski".
Enclosed are some photos for your perusal.
I must apologize for disappearing after
you kindly published the first installment of "The
Moaning Chair". Another spinal surgery
and the ensuing problems. Actually I'm going to hospital
next week for another procedure on the back. Not as
radical this time. I hope.
Anyway, the process of boat building
has been the best therapy. Something to do and always
to think about. Modifications at this point have been;
1/2" ply thru out. Birdwatcher type slot in cabin
top so I don't have to bend as much. Cockpit seats
in back half only to maintain dancing room. Any suggestion
you may have on HP would be appreciated. Given the
added weight of the ply and epoxy....? I'll pen you
a note during recuperation. Thanks for supplying all
the reading material. Hi to the bride.
ciao, Ed Einhorn
|
 |
| Dear Chuck
I can't believe I didn't know about your excellent
magazine!! I was about to pony up the subscription
when I realized it was online only and free!! I am
a longtime Internet guy (And VNET before it existed)
and I'm really happy to see this excellent example
of the power of human communications and ideas..
I
have built two inboard power boats from framekits,
and done all the engine and drivetrain design and
install, mostly homebrew (as the Ham Radio guys say).
I mean like building motor mounts, exhaust manifolds,
driveshafts etc.. I'll attach a photo of the recent
(only
28 years old) :-) one...
In August (After a Summer on Lake Champlain with
my Boat, Wife, Dog, and Grandchildren...) I will be
moving to China for 3 years!
As my favorite Winnie-The-The-Pooh quote goes, "There
has been an alarming increase in the things I know
nothing about" !
I'm researching "boats in Southern China in
the present day", with an aim of acquiring a
boat that I can work on (a favorite pastime) and run
/ sail.. At some time in the future I will have a
story to tell about that...
Regards, Terry King ...On The Mediterranean in Carthage,
Tunisia |
 |
| Little Laker
Progress
Chuck,
Murray Taylor, in New Zealand, sent these photos of
Little Laker (the 14'6" car topper power boat
and Lutra Laker's little sister) with her garboard
in place and ready for the fiber glass tale and fiber
glass cloth.
Thanks,
David Nichols
|
 |
| Sweet Pea Sailing
Hi Chuck
How long have I waiting for these photos. Finally
I have had a proper sail. My Sweet
Pea performed well but the owner has
lots to learn.
I can see I need to straighten the mast a bit but
have turnbuckles in place to allow for this. Probably
all right until I cranked on the mainsheet.
Conditions were a bit choppy when we
first went out. The boat feels nice and stable with
or without the centreboard down.
Then things settled down and the breeze picked and
then we were sailing just as I have been dreaming
of for a while now.
The sails filled nicely and took on the requires shape.
Things looked pretty good from where
I was and I have received plenty of complements from
onlookers. No doubt much of this is due to the beaut
sails made by you. They certainly contribute greatly
to the character of this little boat.
So my Sweet
Pea continues to be everything I hoped
for.
When the season changes down here I will think about
putting together a story for you.
Cheers Simon Hull
|
 |
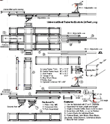
| Trailer
Once your boat is built you need to
get it to the water. Which means you will need to
buy or build a trailer. The universal trailer plan
shown should give you a very strong and easily made
trailer for that purpose. It can be built in steel
or aluminum. For those who plan on using steel, the
scantlings could be reduced for lighter weight boats.
However, the difference in cost isn’t that great,
so I suggest you use the heavier metal shown in the
event you want to sell the trailer, or if you get
a bigger boat in the future.
Once
the trailer is made, the bunks to support the boat
will need to be added. For flat bottom boats, a simple
set of wood runners can be installed with side braces
to keep the boat centered will be adequate. For pontoon
boats, you will need to add cross tube frames to support
the tanks. If your boat has a V bottom, you can use
high longitudinal runners for slight V’s or
custom cut cross frames formed to fit the shape of
deep V’s.
The trailer is designed to be adjustable for different
length boat, and can also be adjustable for different
width boats by adjusting the width of the trusses
and the Torflex axels. Cost of the plans is $45 including
bunk designs for different shape boats. Torflex axels
can be ordered from uglyboat suppliers for less than
$200 each. Kits are also available if you do not want
to build the trailer yourself.
Harold Duffield - https://www.oneuglyboat.com/
|
 |
| Contact: Lucy McKernan
Radius Communication
216-328-1155
Rust May Never Sleep, But B’laster’s Corrosion
Stop Never Quits!
Inhibitor/Protectant a Major Contender for Numerous
Applications
VALLEY
VIEW, OH—Corrosion Stop, (Part No. 16-CST) is
B’laster Chemical Companies’ water-resistant
spray corrosion inhibitor/protectant that saves tenfold
what you might pay later. That’s because multi-tasker
Corrosion Stop penetrates, resists water, displaces
moisture, prevents further corrosion, creates a protective
barrier and simplifies future maintenance. It’s
also just right for winterization.
Corrosion Stop also fights corrosion,
salt water and atmospheric salt and chemicals.
Specifically designed for use in the
industrial, automotive and marine parts and equipment
industries, Corrosion Stop is great for anything that
rusts or is exposed to a corrosive environment, such
as stored automotive frames, parts stored over long
periods, boat trailers and bilge pumps, fishing reels,
boat rigging, live bait wells, hooks and tackle, wheel
bearings, outdoor speakers and bike chains and cogs.
Corrosion Stop is also perfect for engine blocks,
cooling fans, electrical connectors, lug nuts and
use after engine repairs and rebuilds. Use Corrosion
Stop on batteries, trim-pumps, water pumps, exhaust
manifolds, antique equipment, locks and padlocks.
Corrosion Stop and other B’laster
products are produced and packaged in the United States.
Corrosion Stop is available in an 11-ounce aerosol
can, with an average retail cost of $3.79.
Founded in 1957, B’laster
Chemical Companies, Inc. is a leading manufacturer
of a complete and emerging line of high performance
penetrants, lubricants, rust inhibitors and specialized
highly concentrated formulas used in home, industrial,
automotive service, marine, and heavy-duty truck
applications. The company’s flagship product,
PB B’laster, has earned a reputation as the
fastest, most effective penetrant, lubricant and
rust inhibitor in the market. It was the introduction
of precedent-setting PB in 1959 that clinched the
company’s future. Nothing works faster than
B’laster! B’laster Chemical Companies
is located at 8500 Sweet Valley Drive, Valley View,
OH. For more information, call (800) 858-6605 or
visit our Web site at www.blasterchemical.com
|
|
| THE PIRATE
CALENDARGHHHH!
2007 Pirate Calendar Celebrates Golden Age of Piracy
SOMEWHERE AT SEA -- Since Robert Louis
Stevenson first introduced us to his cutthroat crew
aboard the Hispaniola, there have been many attempts
to illustrate bloodthirsty pirates of old.
Now, with Hollywood backing the pirate lifestyle,
Johnny Depp has set the benchmark for piracy at an
all-time high, and piracy prevails on a number of
artistic levels.
Everywhere you turn there are pirate clubs, pirate
movies, pirate posters, Talk Like a Pirate Days, and
the skull and crossbones has become a seagoing icon
of the 21st century.
Artist Don Maitz has long been considered the premier
pirate artist of this popular genre, and his 2007
pirate calendar has just hit the streets.

Don's art has had a cult following for a quarter
century, but his career went mainstream when his artwork
was selected in 1982 to internationally illustrate
millions of bottles of Captain Morgan Spiced Rum.
Last year his pirate calendar sold out as soon as
it hit the stands. This year he has countered with
an even more spectacular calendar, again featuring
his classically portrayed pirates in full color.
This year's pirate calendar offers swashbucklers
of both sexes and includes some of his more celebrated
works, such as Blackbeard, Captain Kidd, and Raging
at the Moon.
Maitz' artwork has been sought after by collectors
for years. He symbolizes a long line of seagoing artists
that include N.C. Wyeth and Howard Pyle. His work
has been compared to the Hildebrant Brothers (of 1970s
Tolkien fame). But in reality he could be more accurately
described as "Hildebrants with a sense of humor."
His subjects, often inspired by people he meets in
his travels, contain the realistic depth and feel
of a Hildebrant work, but with a twist of fate, or
humor -- such as the delightful and toothless Pirate
Gunner, or his pathetic, battle-ravaged Pegleg.
What a breath of fresh air Maitz' work is. This second
calendar promises to be followed by a third in 2008.
The calendars would probably make an elegant and unique
addition to any office, den, or bulkhead.
The calendar features cycles of the moon, all National
holidays, and notations of pirate history such as
the date Blackbeard sacked and burned the Protestant
Caesar.
Each month offers a thumbnail of a work in progress
at the bottom of the page, which may give the artist's
followers a glimpse of what's to come. And everyone
seems to enjoy searching for the artist's signature,
buried somewhere in each of his paintings.
The calendar will appeal to all children, from eight-to-80,
and if this calendar is anywhere near as successful
as the Hildebrant Brothers' calendars, they will be
around for a long time yet to come (a Hildebrant recently
sold for $300 at a comic convention).
The artist and his work have been featured in National
Geographic, on the History Channel, and Dateline NBC.
He has been saluted in museums from coast to coast,
and we will, no doubt, be seeing more of him as the
popularity of pirates seems to show no sign of letting
up.
"Pirates!" the calendar sells for $13.95
in the US and $16.95 in Canada. European buyers must
pay with a check on a US bank or by credit card. The
calendar is published by Tide-Mark Press and can be
purchased on their website at www.tidemarkpress.com,
or by writing Tide-Mark Press, P.O. Box 20, Windsor,
CT 06095-0020.
For more information on artist Don Maitz and his
current projects and exhibitions visit www.paravia.com/DonMaitz.
-- Joe Ditler
|
 |
|
|
|
|
|